Экологичное дерево, проверенное временем. Используем технологию CLT для прочности и долговечности.
Стеклопакеты
Закупаем у лучших производителей. Энергоэффективные, сохраняют тепло зимой и прохладу летом.
Двери собственного производства
Мы делаем двери сами, чтобы они идеально сочетались с архитектурой дома.
Внешняя отделка
Сразу готовая к эксплуатации. Эстетично, практично и надолго.
Внутренняя отделка
Натуральное тонированное дерево, которое создаёт уют и тепло.
Утеплители
Используем современные сертифицированные утеплители для энергоэффективности.
Пропитка и обработка
Дерево проходит защиту от влаги, огня и биопоражений. Благодаря этому дома служат десятилетиями.
Производство
Производство домов находится в Солнечногорске. Здесь мы создаём модули, проверяем их качество и готовим к доставке. Каждый дом проходит строгий контроль перед тем, как отправиться к своему владельцу.
Технология модулей
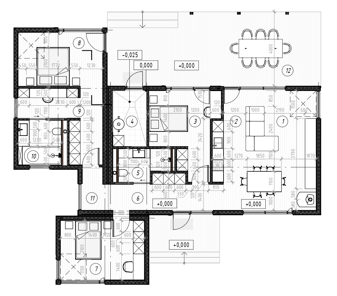
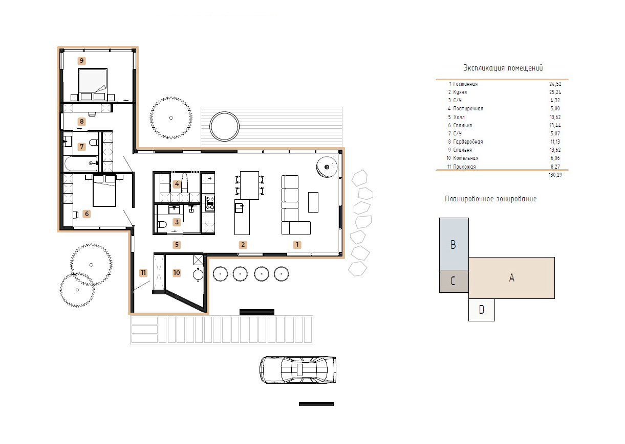
Все наши дома строятся по модульному принципу: несколько типов модулей соединяются в единую систему, формируя планировку и площадь. Для каждой модели используется свой набор и количество модулей, благодаря чему она получает уникальную конфигурацию и собственный характер.
На основе одних и тех же модулей мы можем создавать разные дома под задачи клиента.
Блок-А
Блок-А
Блок-B
Блок-B
Блок-C
Блок-C
Блок-D
Блок-А
128,63 м²
146,51 м²
Блок-B
Блок-C
Блок-D
На основе одних и тех же модулей мы можем создавать разные дома под задачи клиента.
Модуль-А
130,29 м²
135,65 м²
130 м²
Модуль-B
Модуль-C
Модуль-D
Модуль-E
122,59 м²
Все наши дома — это система модулей, которую можно дополнять. Сегодня вы начинаете с уютного коттеджа, а завтра — достраиваете спальню, гостевой блок или террасу. Это как LEGO, только из настоящего дерева. Ваш дом растёт вместе с вами и вашими возможностями.